Sada systému zavírání zásuvek s tlumením, VYSOKÁ, V: 185 mm, bílá
- SKU: 04192.270.1012/B-K
- EAN: 5060857452167
- Prodejce:Furnica
- Kategorie: Kovové výsuvné lišty, Nábytkové doplňky, Systém zásuvkového systému s tlumeným zavíráním, Systémy zásuvek, Výsuvy zásuvek s tlumeným zavíráním
Objednejte do , a získejte to mezi a

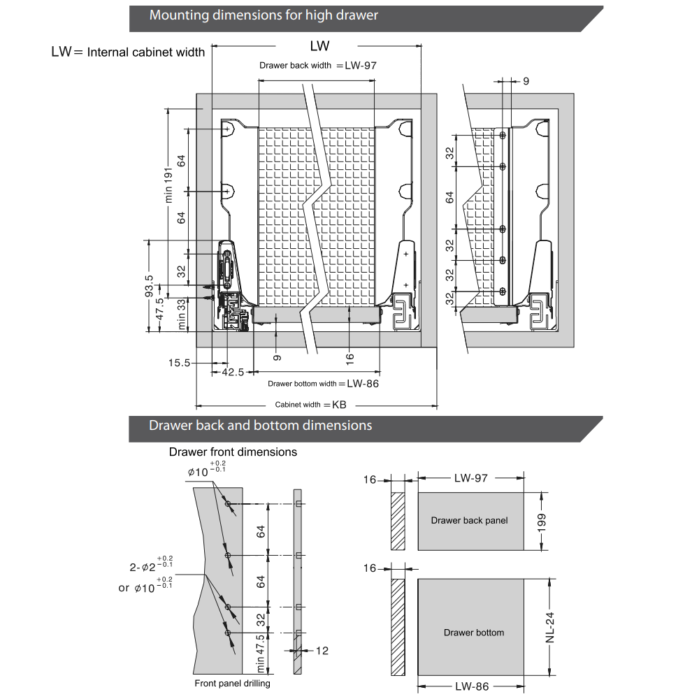
Technické údaje: Výsuvný systém s tlumením 185 mm
Délka: | 270-550mm |
Výška: | 185mm |
Materiál: | Ocel |
Plné nastavení | Svisle a vodorovně |
Maximální váha: | 40kg |
Další mechanismus: | Tlumení |
Plné vysunutí: | Ano |
Barva: | Bílá |
Včetně: | Boční lišty a montážní šrouby |
Sada výsuvného systému s tlumením, VYSOKÝ, V: 185 mm, Bílá
Pokud jde o tuto sadu výsuvných lišt, najdete zde každou délku od 270 mm do 550 mm. Cokoli potřebujete, je zde k dispozici. Kromě toho se na každé liště nic neliší. Všechny jsou vyrobeny z vysoce kvalitní oceli, která vám zajistí dlouhou životnost a odolnost. A všechny jsou schopny unést váhu až 40 kg, což jistě oceníte. Kromě toho jsou všechny skvělé v tom, že se plynule pohybují po kolejnicích.
Praktičnost, užitečnost a funkčnost jsou synonyma
Dlouhá životnost a plynulý pohyb jsou pouze některé z mnoha výhod, které mají. Všechny mají funkci plného vysunutí - nebudete muset strávit hodiny hledáním věcí. Bude vám to trvat méně času, protože když máte plně otevřenou zásuvku, je vše viditelné. Kromě toho, když zásuvku zavřete, nebudete se muset trápit praskajícími zvuky, a to díky systému tlumení. Kromě toho jsou plně nastavitelné - můžete je nastavit vodorovně i svisle - takže jsou opravdu všestranné!
Výrobce
Elnick UG
Zechenstraße 3,
44536 Lünen, Německo
info@elnick.de